Prislapp for Miljøbygget: 124 millioner
Det kan koste så mye som 124 millioner kroner å rehabilitere og bygge om Miljøbygget på Lauvsnes. Det viser nye kalkyler fra Norconsult.
Selv om Norconsult tar forbehold om stor usikkerhet rundt kalkylene, er kommunedirektør Knut Storeide klar på at dette blir for dyrt.
På direkte spørsmål om det er realistisk å rehabilitere bygningsmassen til denne prisen, svarer Storeide:
– I dag er det ikke gjennomførbart med den økonomiske situasjonen vi har. Vi må se på alternative løsninger for bygget, sier han.
Stort behov
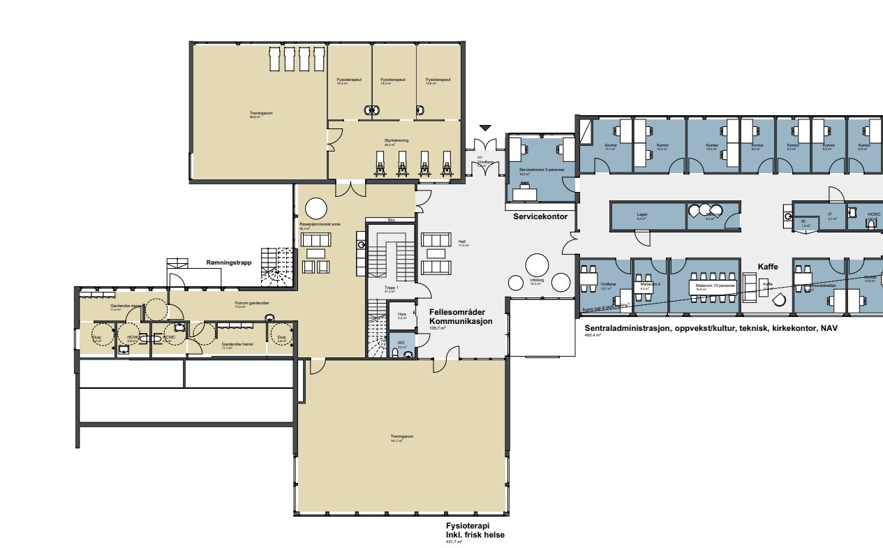
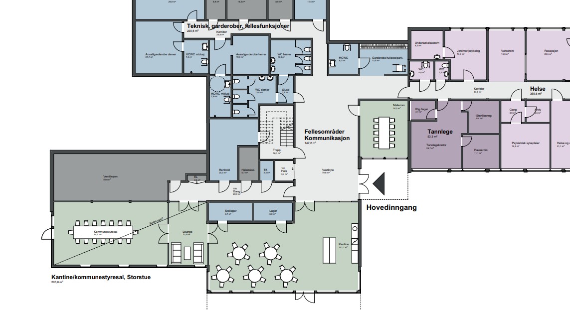
Miljøbygget huser blant annet kommuneadministrasjonen, fysioterapi, tannlege, lege og helsestasjon. Det ble bygd i 1977, og har et betydelig etterslep på vedlikehold. Det kom fram i en rapport fra Norconsult tidligere i år.
Nå har Norconsult laget en skisseplan for rehabilitering av den 2.732 kvadratmeter store bygningen, basert på innspill fra brukerne.
Det er foreslått at dagens kafeteria og møterom blir treningssenter og fysioterapi, mens møterom og kantine flyttes til sokkeletasjen.
Kontorfløya oppe moderniseres, mens det legges opp til mindre endringer i helsefløya, som tidligere er pusset opp innvendig.

Stor usikkerhet
Men det som nok kommer til å vekke størst oppsikt, er den siste sida i skisseplanen. Der er det satt opp en kostnadskalkyle med en god del usikkerhetsmomenter.
Totalkostnaden er satt til 124 millioner kroner, inkludert moms.
Selve byggekostnaden er anslått til 73 millioner kroner. Av dette beløpet utgjør arbeid på selve bygningen 32,9 millioner kroner, VVS 10,1 millioner og el-tekniske anlegg 8,9 milloner.
I tillegg kommer et anleggsbidrag til NTE for ny trafo på 600.000 kroner, moms på 18,2 millioner (som kommunen muligens kan få tilbake), en reserve på 13,7 millioner og en sikkerhetsmargin på 18,3 millioner kroner.
Norconsult skriver at det er en betydelig usikkerhet, og derfor er det lagt inn 35 prosent i reserver og marginer.

– Massivt
– Hvordan vil du kommentere prisen på 124 millioner?
– Det er massivt. Dette er et bygg med behov for mer enn en kjærlig hånd, og vi må se på hvordan vi går fram. Det kan være aktuelt å se på en seksjonering av bygget, og ta det over tid, sier Knut Storeide.
Uansett vil det være en utfordring å gå i gang med et sånt prosjekt, påpeker han. Tilstandsrapporten viser at det er mye som må gjøres. Blant annet må det bygges nytt ventilasjonsanlegg.

– Vil det nå være like dyrt å rehabilitere som å bygge helt nytt?
– Det er noe som det fort vil bli pekt på. Hva er alternativet og mulighetene?
Om det skal bygges nytt, vil kommunen uansett sitte med en stor bygning som det vil koste mye å sannere.
Penger i statsbudsjettet?
Storeide er spent på hva som kommer i statsbudsjettet, som regjeringen skal legge fram til uka. Det er signalisert tiltak for å gjøre det noe billigere å renovere eller bygge nytt, for å øke aktiviteten i byggenæringa.
– Det er viktig for oss å se på flere muligheter, og gi god informasjon til politikerne, sier Knut Storeide.
Han vil nå forberede en sak for politikerne, som legges fram for formannskapet 28. oktober og kommunestyret 6. november.
– Etter kommunestyremøtet vil vi ha flere svar om hvilken veg vi skal peke ut. Vi må belyse de mulighetene vi har, sier Storeide.






